estado do tempo
Today is wednesday 19 november, it is ºC and in Santiago
  • galego
  • español
  • english

Alameda Park, natural monument

INTRODUCTION

Santiago de Compostela has got many parks and gardens, but the 'Alameda' Park is the most integrated in the history of the city and its population.

The 'Alameda' Park is located west to the city centre, where we find the historical Santiago bordered by defensive walls, nowadays lost, and the Santiago crowded with tourists.

The origin of the park goes back to the donation of the grounds to the city by the Counts of Altamira around the middle of the 16th century. From that moment, this area can be identified in old representations of the city, such as Pier Maria Baldi’s well-known panoramic, included in the book 'Viaje de Cosme de Medicis por España y Portugal', from the middle of the 16th century, when it still was out of the city walls.

The first interventions in order to plant trees in this space started at the end of the 18th century, when the rows of oaks that surround the Chapel of Santa Susana were planted. From that moment, partial interventions of regulation and development of the area have taken place. Landscape works started in the 1830s, by building the public walk lined up with the Camino Real, the current Juan Carlos I avenue. Nowadays we know this walk as the 'Alameda Park' and Star Field. 

Both ends of the 'Alameda' Park are closed by the 'Ferradura' walk from the 19th century that surrounds the Carballeira (“Oak Wood” in Galician) of Santa Susana.

The garden is described as 'pacego' (adjective applied to the ancestral country houses in Galicia or 'pazos') because it was the recreation and leisure area of the city in the same way that the gardens of Galician 'pazos' were areas of pleasure and enjoyment.

Since the constitution of the area as we know it nowadays, more or less important interventions have been numerous, including the most recent one (2006-2008), promoted by the Council of Santiago and defrayed by the Consortium of Santiago de Compostela.

There are many historical monuments and different artistic elements in the 'Alameda' Park (Link to monuments website). Many local and big feasts are celebrated in the 'Alameda' Park, for example, the Ascension Day, a very important religious festivity with a changeable date (40 days after Easter); or Saint James the Greater’s feast, patron saint of the city, Galicia and Spain (25th July). Apart from these feasts, numerous cultural and popular ceremonies are celebrated there, such as the Book Fair, photographic exhibitions, performances for children, concerts played by the municipal music band, etc.

As time has gone by the 'Alameda' Park and its annexed gardens have been enriched with a singular ornamental flora, with a total of ninety species with more than a thousand and five hundred trees and shrubs, some of which outstanding thanks to their age or size or their involvement in popular traditions. (Link to singular trees website).


THREE GARDENS IN ONE

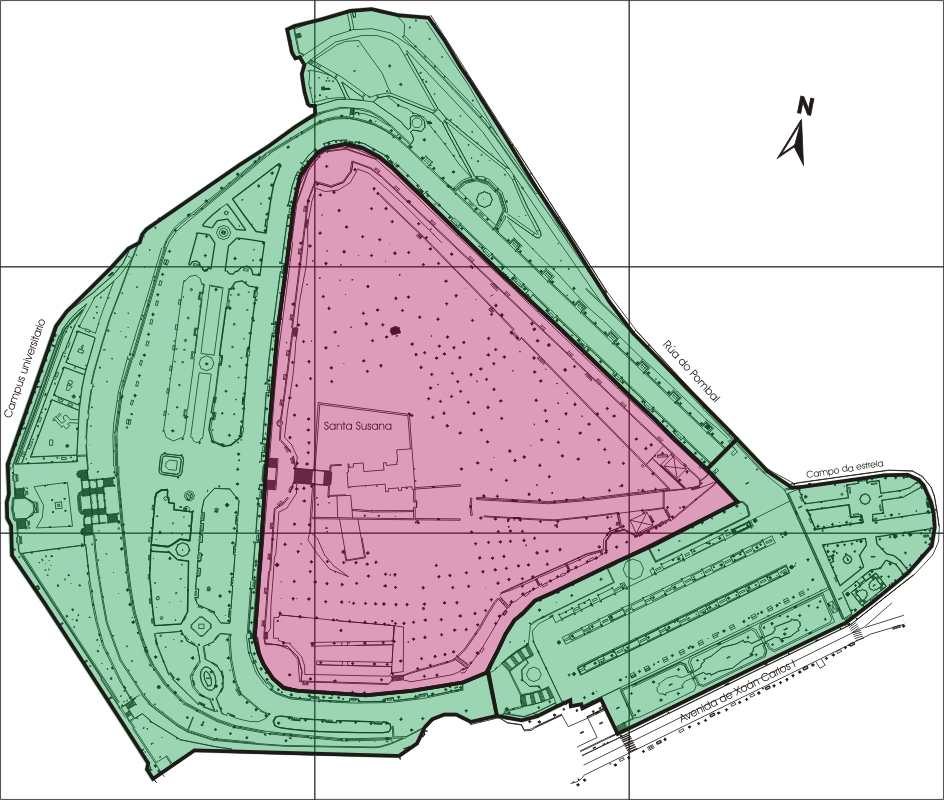
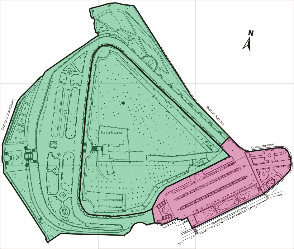
Although the park is called by the general name 'Alameda', it consists of three different gardens, known by Compostela citizens as the 'Alameda' Park, the 'Ferradura' walk and the Oak Wood of Santa Susana. They constitute a common area, of more than eight hectares, but their birth dates are different, as well as the model they follow, their uses and their functions.

These gardens are designed following the taste of old times, with geometric flowerbeds, where straight lines predominate; the Oak Wood of Santa Susana is an exception: it belongs to a landscape model, but it was not conceived under these principles of gardening.

Each garden has a particular design, with monuments, structures and flora that distinguishes it from the others.


The Oak Wood of Santa Susana

The Oak Wood is the oldest garden; oak trees ('carballos', in Galician) (Quercus robur) predominate, but there are other species (Link to Map of the Oak wood of Santa Susana). In the Middle Ages the area of the Oak Wood of Santa Susana was the place where the local market used to take place and there are many pictures and paintings of this commercial activity during the 19th and 20th centuries. This activity finished with the changes in society, economy and old commercial models; the movement of the cattle market to the National Market of Salgueiriños, in the North of the city, by the beginning of 1970, also contributed to its end.

At the Oak Wood of Santa Susana we can find the Chapel of Santa Susana, the Monument to Daniel Rodríguez Castelao (Link to monuments website) and some magnificent oak trees, with a maximum of around two hundred years old, judging by the period of plantation. (Link to singular trees website).


The 'Alameda' Park

The 'Alameda' Park is a landscaped area that starts in front of Porta Faxeira, remembering the gate that was there at the medieval wall, with rows of different species that reach the fountain and the staircase of the west end (Link to map of the 'Alameda' Park).

The first part, with rows of oriental planes and camellias, receives the particular name of Campo da Estrela, in reference to Saint James. In this garden there is a great specimen of sequoia that already protrudes between the trees in a picture from the end of the 19th century, and a magnolia planted by the Sociedad de Amigos del País. (Link to singular trees website). There are also some specimens that commemorate different events and come from different donations, with their respective explanatory plaques. The monument known as Las Marías remain on one side of the central street, going for their eternal two o’clock-walk (Link to monuments website).

The most interior part of the Alameda Park is composed by different rows of trees. There is a double line of alternated silver limes and camellias in the centre. On the right side there is another row of tree privets and, next to the oak grove, a walk with different species (poplars, tasmanian blackwoods, oriental planes). At the opposite side, there is a row of firs and, further away, an area with small ponds.

The paths of La Alameda Park, flanked by rows of trees, were regulated following the customs of the time: social classes were separated. The path on the right was for the lower class; the central one, for the nobility, and the path on the left was reserved for clergymen, teachers and educated professionals.

Here we must mention the Monument to Casto Méndez Núñez, the bandstand, and the Church of El Pilar. (Link to monuments website). Moreover, the central path has two rows of granite benches with wrought iron backs and plant and animal motifs, which come from the former foundry of Sargadelos, which preceded the current ceramic factory. The specimens of willow-leaves magnolias are magnificent by the end of winter and a splendid silver lime, a oriental plane, the tulip tree and many others are also very interesting. (Link to singular trees website)


The 'Ferradura' walk

This garden receives this name due to its horseshoe shape ('ferradura' in Galician) and it links both sides of the 'Alameda' park (Link to map of the 'Ferradura walk). The northern stretch is known as Lions walk, because it has two double columns closed by an arch and finished by two lion figures. The western part of the area is composed by three parallel corridors: Bóveda walk (the inner one), near the oak grove; 'Letras Galegas' walk (the one in the middle) which receives this name because of the Monument to Rosalía de Castro; and 'Ferradura' walk (the external one) adjoined to the slope that leads to the University Campus.

There are many monuments, fountains and ponds, especially on the west part. There we find the sculptures dedicated to Rosalía de Castro and Pedro Pais Lapido, the representation of a popular milkwoman, the magnificent staircase that goes down to the University Campus and the one that goes up to the Church of Santa Susana. Moreover, we must mention the Monument to Manuel Ventura Figueroa and the ancient 'Cruceiro do Gaio' milestone, from 1679. (Link to monuments website).

At the 'Ferradura' walk there are many tree specimens worth mentioning, such as the so-called 'A Perona', which commemorates the visit of Eva Duarte de Perón to Santiago, some lawson cypresses, algerian firs, cedars, magnificent eucalyptus, etc. (Link to singular trees website). Besides, there are also some important rows of trees: two rows of magnificent Canary palms, one of horse chestnuts, and, above all, the path with oaks that surrounds the Oak Wood of Santa Susana.